REZERVACE
Nízkoenergetická novostavba rodinného domu jen 20 minut
od Brna
Starovice u Hustopeč | 7+KK novostavba z roku 2025
Moderní nízkoenergetická novostavba 7+KK ve Starovicích, klidná ulice a prostorný dům 🌿🏡. Nedokončený interiér si můžete doladit podle sebe a díky skvělé dostupnosti na D2 jste v Brně autem za 20 min.
Tato nízkoenergetická novostavba z roku 2025 nabízí velkorysou dispozici 7+KK a je ve fázi těsně před dokončením. Uvnitř najdete hotové omítky, sádrokartonové stropy, kompletní přípravy elektroinstalace, rozvodů, chytré domácnosti i pečlivě provedené zateplení. Velkoformátová hliníková okna přivádějí do domu spoustu světla a fasáda už čeká jen na to, až kolem ní rozkvete zahrada.
Majitelé při stavbě nešetřili na ničem, co dává smysl. Nešlo o rychlou investiční stavbu, ale o budoucí domov — a podle toho to také vypadá. Vybrali technologie a vychytávky, které u domů kolem 10 milionů obvykle neuvidíte:
krb napojený na teplovodní výměník
podlahové vytápění
shoz na prádlo
projekt na rekuperaci
naddimenzované zateplení domu
hliníková okna s trojskly
příprava na chytrou domácnost
podsklepený dům s technickou místnosti a pánskou místností, nebo hobby dílnou
vnitřní zateplení garáže
široká příprava elektroinstalace v každém pokoji
možnost čerpat zpětně dotaci zelená úsporám a získat dotaci cca 750 000 Kč
Budoucí majitel si tak může interiér dotvořit zcela podle svého vkusu – od podlah až po finální vybavení.
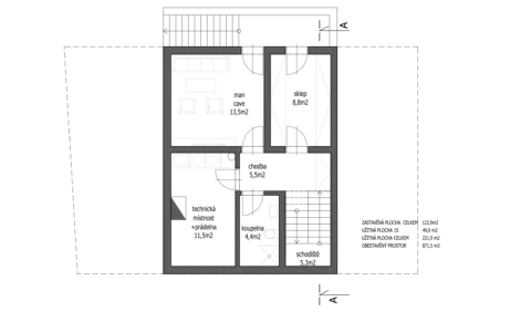
suterén s budoucí prádelnou, pánskou místností i vstupem na zahradu
Suterén nabízí praktický prostor, který si můžete dotvořit přesně podle sebe — od budoucí prádelny až po pánskou místnost nebo hobby dílnu. Z koupelny v patře nad tímto prostorem sem navazuje shoz na prádlo, takže se špinavé oblečení dostane přímo tam, kam patří. V této části domu bude umístěn také plynový kotel. Navíc odsud vede i přímý vstup na zahradu, což zvyšuje využitelnost prostoru při každodenním provozu.
PROJEKTOVÁ DOKUMENTACE
Zajímají vás detaily stavby? Pak se nezpomeňte podívat na kompletní projektovou dokumentaci, kde naleznete veškeré informace k pravomocně schválenému stavebnímu povolení této novostavby.
- nízkoenergetická novostavba z roku 2025
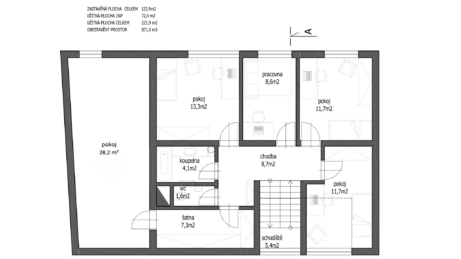
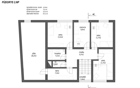
- dispozice 7+KK + garáž a dva sklepy v suterénu
- 501 m² celková plocha pozemku, 221 m² užitná plocha domu, včetně sklepů a garáže
- Parcelní číslo 943, kat. území Starovice
- Přístup na pozemek z nové asfaltové obecní komunikace a nebo ze zadní části z polní cesty
- Připojeno na vodu, obecní kanalizaci i elektřinu
- Skvělá orientace pozemku na východ a západ
- Obvodové zdivo: pórobeton YTONG tl. 300 mm, zděný na tenkovrstvou maltu
- Zateplení stěn: minerální vata 100 mm
- Sokl: XPS izolace 120 mm
- Střešní konstrukce – vaznicová soustava: mezi kleštinami 200 mm, nad kleštinami 200 mm, nad půdou a šatnou 160 mm, pod krokvemi 200 mm
- Okna a dveře: hliníkové profily, trojskla
LOKALITA
Starovice 166, okr. Břeclav, parc. č. 943
Starovice jsou klidnou a příjemnou obcí na dohled od Hustopečí, obklopenou vinicemi, ovocnými sady a typickou zvlněnou krajinou jižní Moravy. Místní atmosféra vychází z dlouhé vinařské tradice a pohodového venkovského rytmu, ale zároveň nabízí výhodu rychlé dostupnosti všech služeb v nedalekých Hustopečích – od obchodů a škol až po oblíbený plavecký bazén.
Okolí Starovic je ideální pro procházky mezi vinohrady, nenáročné cyklovýlety i posezení ve vinných sklepech. Přímo v blízkém okolí najdete vyhlášená vinařství Sonberk a Gotberg, která patří mezi nejrespektovanější v celé oblasti. Nabízí špičková vína, moderní architekturu a výhledy, které z degustací dělají zážitek. Krajina kolem obce je díky tomu živá, malebná a plná možností, jak si užít víno i přírodu.
Díky poloze u dálnice D2 jsou Starovice skvělým místem pro ty, kteří hledají klidné bydlení s dobrou dostupností. Do centra Brna dojedete přibližně za 30 minut. Starovice tak propojují venkovskou pohodu, bohaté vinařské zázemí a praktickou blízkost větších měst – ideální kombinace pro život na jižní Moravě.
Rezervační smlouva
Nejsem makléř, který vám ukáže smlouvu až těsně před podpisem, nenechá vás se k ní ani vyjádřit a tlačí vás k podpisu. To není můj styl!
Jsem transparentní. Proto zde už teď najdete rezervační smlouvu, kterou si v klidu přečtěte. Pokud nebudete nějakým pasážím rozumět, rád vám vše vysvětlím.
cena
REZERVACE
TATO CENA JE UVEDENA VČETNĚ PROVIZE
A NÁKLADŮ ZA PRÁVNÍ SERVIS
Vypočítejte svou měsíční splátku a celkové náklady hypotéky
Splátkový kalendář — přehled po letech
| Rok | Roční splátka | Úroky | Jistina | Zbývající dluh |
|---|
KONTAKT
Vyplňte tento krátký formulář a já se vám co nejdříve ozvu
a domluvíme se na prohlídce. A nebo mi rovnou zavolejte, moje číslo je +420 776 252 777.
KDO JSEM VE TŘECH VĚTÁCH
Jsem profesionální realitní makléř, který od roku 2010 prodal více než 570 nemovitostí v celkové hodnotě přes 1,7 miliardy Kč. Svými zkušenostmi a efektivním využíváním marketingových nástrojů pomáhám klientům z Prahy a jižní Moravy prodávat jejich nemovitosti co nejlépe a za co nejvyšší tržní cenu .
S ČÍM VÁM ZVLÁDNU DOBŘE POMOCT?
U MĚ NA FACEBOOKU TO ŽIJE!
© 2010 - 2026 MARTIN TESÁREK - profesionální realitní makléř ®
































